NORELEM
Cône de positionnement pour unités de centrage
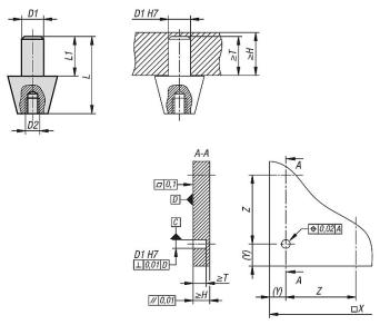
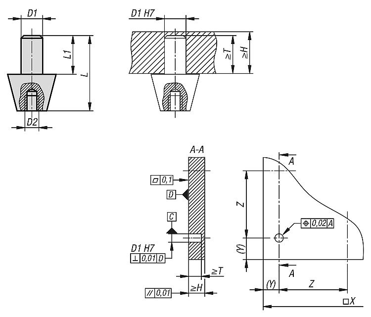
Les cônes de positionnement, associés aux douilles de positionnement, forment une unité de centrage pour un positionnement très précis de deux composants. L'ensemble atteint une précision de répétition < 0,003 mm. Le caoutchouc vulcanisé ne se fragilise pas et est insensible aux salissures et aux copeaux. Les petits copeaux enfoncés sont sans danger pour l'unité.
Principe fonctionnel :Lorsque le cône de positionnement et la douille de positionnement sont assemblés, les billes sont comprimées dans leur plage élastique, fixant ainsi avec la plus grande précision les deux parties dans lesquelles elles ont été installées. Afin que les billes se déforment dans la plage élastique, il suffit de veiller à ce que la profondeur du trou dans lequel la douille de positionnement est ensuite emmanchée soit strictement respectée. Le cône de positionnement correspondant à la douille de positionnement est déjà fourni et doit simplement être en contact avec la surface de la contre-pièce. Désormais, un système de positionnement à point zéro précis est disponible.
Matière :Cône en acier.
Billes en acier à roulement.Finition :Cône rectifié et trempé.
Billes vulcanisées sur le cône.Plage de température :+80 °C max.


English 


















